Биокамин.рф
Гипермаркет каминов
г. Нальчик
Ежедневно 10.00-20.00
г. Нальчик, Кузнечный пер., 5


8 (800) 100-10-78 Обратный звонок
  • Наши проекты
  • Проект № 149. Вертикальный биокамин и дровница Реализованные проекты1
18 Дек 2018
Воронеж, шоу рум

Проект № 149. Вертикальный биокамин и дровница

18 Дек 2018
Воронеж, шоу рум
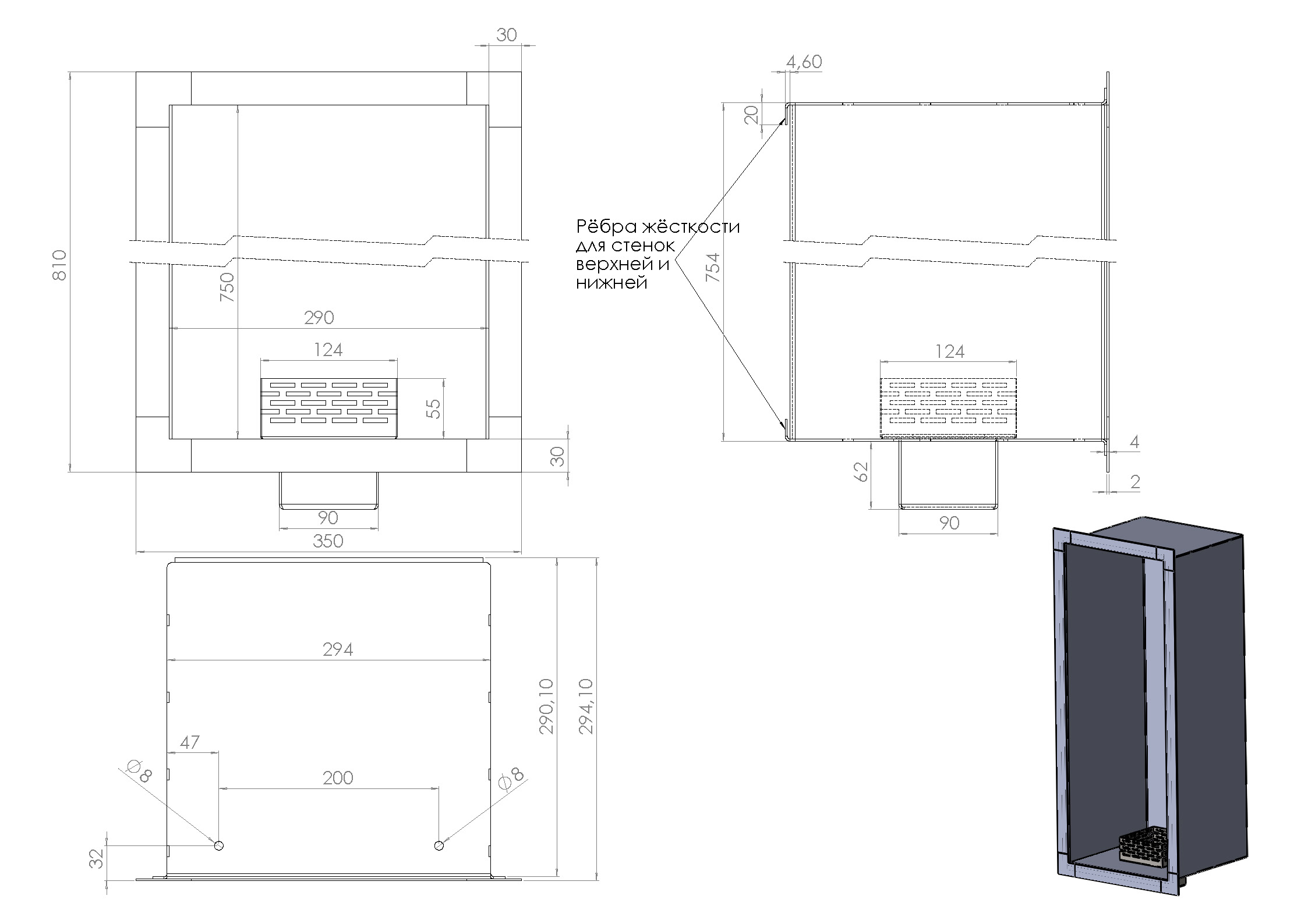
Вертикальный биокамин для нашего шоу рума и дровница с размерами ДхВхГ 350х810х290 мм. Корпус камина и дровницы из стали толщиной 2 мм, окрашены черной порошковой краской с фактурой Муар. Топливный блок с декоративной решеткой из нержавеющей стали с длинной линии огня 50 мм.

Характеристики

  • Ширина, мм
    350
  • Высота, мм
    810
  • Глубина, мм
    290
  • Материал корпуса
    сталь
  • Линия огня, мм
    50

Поделиться статьей:

Товары из кейса

Видеообзоры наших каминов

Видеообзор Биокамина Kratki GOLF

Видеообзор Биокамина Kratki BRAVO

Смотреть все

Смотрите так же

Online-показ

Для всех регионов РФ

Приглашаем вас на онлайн-показ самых современных и востребованных каминов! Вы сможете не только оценить внешние преимущества понравившейся модели не выходя из дома, но и самостоятельно сравнить разные варианты и проконсультироваться со специалистом. Ждем вас в гости!
Проведем видео показ удобным
для вас способом
call [#192] Created with Sketch. Позвонить
WhatsApp